ON THE AGENDA: Twentynine Palms City Council, Wednesday, November 12, 2025
Sheriff contract strains a small-town budget, Visitor Center woes, plus affordable housing and animal shelter updates

This upcoming Wednesday, November 12, 2025, the City of Twentynine Palms will hold its City Council meeting a day later than usual at 6 pm, 6136 Adobe Road, to accommodate government building closures on Tuesday, which is Veterans Day.
Following a Closed Session at 5:15 for anticipated litigation, the agenda contains a financial report update for last year, a hefty amendment to the San Bernardino County Sheriff’s Department contract budget, discussion of moving or closing the Visit 29 Palms Visitor Center at 73484 Twentynine Palms Highway, and the formation of an animal shelter subcommittee.
A 630-page agenda packet for the meeting is available here; coverage of the last City Council meeting is linked here.
PUBLIC COMMENT
You can comment on agenda items and issues important to you at every City Council meeting. Comments on agenda items take place during discussion of that item, while comments on non-agenda items take place near the end of the meeting. The Brown Act prevents Council from commenting on non-agenda items. To comment, just pick up a form at the entry desk, fill it out, and hand it to the Clerk, who usually sits just in front of the Council bench toward the right.
Here’s the list of Council email addresses to write if you can’t get to the meeting — be sure to email them prior to 2 pm on the date of the meeting so they have time to read your email prior to discussion. You can also copy the clerk at cvillescas@29palms.org and ask that your letter be made part of the public record.
AWARDS, PRESENTATIONS, APPOINTMENTS AND PROCLAMATIONS
After an award to the Semper Fi softball program for participation in the City’s Cash for Trash program with Burrtec Waste, the City Manager, with assistance from Rogers, Anderson, Malody, & Scott (RAMS), will present the annual comprehensive report for the ‘24-’25 fiscal year.
Similar to last year’s report, RAMS, a government auditing firm, awarded the City with an unmodified opinion for 2025, which is the highest rating possible in accordance with the Government Accounting Standards Board.
The 155-page report shows the City in a slightly stronger financial position than it was at this point last year, with a general fund increase of 3% in revenue thanks in part to inflation:
Tax revenues increased by $345,163 from the prior year, largely due to the continued rise in inflation and higher property tax values.
Per the report, the City’s general fund balance was at $12,758,932 as of June 30, 2025. The City uses its general fund as its primary operating budget, which covers utilities, maintenance of City-owned buildings, roads, police services, and City employee salaries.
Looming on minds of city treasurers and financial planners throughout California are future employee pension costs. The City of Twentynine Palms was able to offset some of those costs by $737,578 “as a result of changes in the City’s net pension liability.”
CONSENT CALENDAR
The Consent Calendar consists of items usually approved with a single vote. The public is given a chance to make public comment on these items prior to the Council motion. Fill out a comment form specifying the item you wish to address and submit it in person or send an email in advance regarding any of the items on this meeting’s Consent Calendar.
Although often routine, sometimes consent calendar items are noteworthy. Items for this meeting include construction contract awards for two projects—Split Rock Avenue bridge and an affordable housing project for Veterans on Elm Avenue, plus a $363,844 increase of the current San Bernardino County Sheriff’s contract.
The Elm Avenue Veterans housing project will go to KNC Construction, Inc., the only applicant who responded to the City’s bid request. $130,000 of the project will be paid for with funds from the California Department of Housing & Community Development’s Homekey grant program, with the City covering the remaining $59,480 for a total of $189,500 that will go towards remodel of 4 housing units between two adjacent properties—6937 Elm Avenue and 6943 Elm Avenue.
According to the grant terms, occupants of the affordable housing units must be placed through the Veterans Assistance Supporting Housing (VASH) program.

As for that County Sheriff’s contract, when the ‘25-’26 City budget was approved by Council in July, it contained a contingency plan for a 4% increase in law enforcement services. This was due to contract negotiations with the local law enforcement union, the Sheriff’s Employees’ Benefit Association (SEBA), which were ongoing at the time.
Union negotiators won over the hearts of San Bernardino County Supervisors at their September 9 meeting, where they unanimously approved a new SEBA contract increase to the tune of 6%, which is 2% higher than budgets planned for, to take immediate effect the following month.
Third District County Supervisor Dawn Rowe, who represents Twentynine Palms and surrounding areas at the County level, boasts endorsements from SEBA on her 2028 re-election campaign website.
In 2024, the City of Victorville, who also contracts law enforcement services through SBCSO, inquired with the Fair Political Practices Commission (FPPC) if it was legal for councilmembers in elected office to accept donations or political contributions from SEBA in excess of $250 when they are expected to vote on contracts that involve SEBA employees and San Bernardino County Sheriff law enforcement coverage.
In this instance, the FPPC determined that “Councilmembers are not prohibited from accepting, soliciting, or directing contributions in excess of $250 from them.”
SEBA and its affiliated political action committees have had a handful of FPPC complaints filed against them since at least 2010, including one that resulted in a $3,000 fine.
PUBLIC HEARING
11. Adoption of the 2025 California Building Codes Published by the International Code Council.
This is a routine item expected to be approved 5-0.
DISCUSSION AND POTENTIAL ACTION ITEMS
12. Visit 29 Palms Visitors’ Center End State


Visit 29 is the formal name for the City’s tourism branch, an extension of the Tourism Business Improvement District (TBID), and it’s funded via a 1.5% tourism tax at lodging and hotel accommodations.
Visit 29 operates the City of Twentynine Palms Visitor Center, located at 73484 Twentynine Palms Highway, which the TBID revamped in recent years to include informational displays, pamphlets, rotating art exhibits through the Public Arts Advisory Committee, new flooring, and other aesthetic upgrades.
The intent behind a City-sponsored visitor center was for it to be open seven days a week, but due to staffing constraints, the visitor’s center operates with limited hours. The building is city-owned and utility and maintenance costs are approximately $4,000 annually, not including staffing.1 Currently, the City receives $6,000 per year in rental income from the Desert Trail newspaper.
Desert Trumpet took a deep-dive at the TBID’s marketing plan for 2026, showing the district fell short in both execution and metrics across many categories.
Competing for foot traffic is another visitor center operated by the Joshua Tree National Park Association just two blocks east, at 6533 Freedom Way.
Citing administrative constraints on TBID Marketing Director Breanne Dusastre, who has assumed much of the Visitor Center operations, the City is proposing three options— shutdown the visitor center altogether and lease the space to a private business, purchase a temporary structure at a cost of over $100,000 to house a visitor center at a different location, or move visitor center operations inside the Gymnasium entrance at Freedom Plaza.
None of the options listed resolve the issue of staffing the visitor center part-time. The visitor center also houses the office of the TBID marketing director, so if the location shutters it is unclear if the TBID would retain a physical access point elsewhere in town or if the Marketing Director’s work would be conducted remotely.
A City Facebook post on October 21st advertised a part-time visitor center staff position was open to applicants for $17.25 an hour.

On Saturday, November 8, Desert Trumpet ran into business owner and PAAC Chair Paul Razo at Freedom Plaza, which was bustling with activity from the 29 Palms Farmers Market and the Twentynine Palms Book Festival.
Razo says he hopes for the current location to remain open, but if the City chooses alternatives, hopes they focus on curating and designing something people are drawn to.
When asked if there were other venues the PAAC has in mind for rotating art exhibits in case the visitor center moves or closes, Razo says the City suggested the Joe Davis Activity Center across from Luckie Park. However, the Joe Davis Activity Center doesn’t have the specialized lighting required for displaying art that was installed in the Visitor Center.
13. Updates to City Fee Waiver Policy No. 1 and Facility Rental Rules & Regulations.
The City’s fee waiver policy was updated in May 2024. Staff is now seeking a stricter interpretation of that policy– suggested changes require nonprofits to be in good financial standing to apply for a facility fee waiver, with the number of days one could apply for a waiver now are capped at one day instead of three.
Two other policy revisions raise eyebrows2:
“Fee waivers will not be granted to entities or individuals convicted of crimes against the City or involved in pending litigation with the City”
“Fiscal sponsorships are not permitted; the nonprofit requesting the waiver must be the entity conducting the event.”
The first clause is oddly worded, as individuals already do not qualify for fee waivers. The second clause excluding fiscally sponsored organizations from receiving waivers poses some questions as several organizations who’ve received funding or special consideration by the City in the past are not independent nonprofits.
For instance Mojaveland, which has a $1 per year lease agreement, is fiscally sponsored by Aha Projects and Ready 4 Reading Book Club, which received a $5,000 donation from the City, is fiscally sponsored by the High Desert Community Foundation.
It should also be noted that the 29 Palms Music Committee, which is hoping to use the Freedom Plaza stage, is fiscally sponsored by the Basin Wide Foundation.
14. Discussion Item— Septic System Communications
In accordance with the State of California’s Colorado River Basin Regional Water Quality Control Board, the City of Twentynine Palms and the Twentynine Palms Water District are involved in collaborative efforts to monitor groundwater quality and septic system impacts to the local water table.
Because the city lacks a formal sewer system, commercial and residential structures rely on septic tanks to store wastewater. The staff report states, “Due to systems holding domestic wastewater underground, they can pose a severe risk to our groundwater if they are not properly maintained.”
Environmental impacts from septic tank usage are well documented. For example, a 2013 investigative report conducted by the U.S. Geological Survey found evidence of septic systems contributing heavily to groundwater contamination via nitrate plumes in Douglas County, Nevada.
City Staff is committing to include water quality updates in the consent calendar of each Council meeting. This is part of an increased effort with the Water District to inform and educate the community on septic system upkeep.
The City recently received a crucial $2,431,988 in funds for a 5-year USGS study on the quality of groundwater in local aquifers.
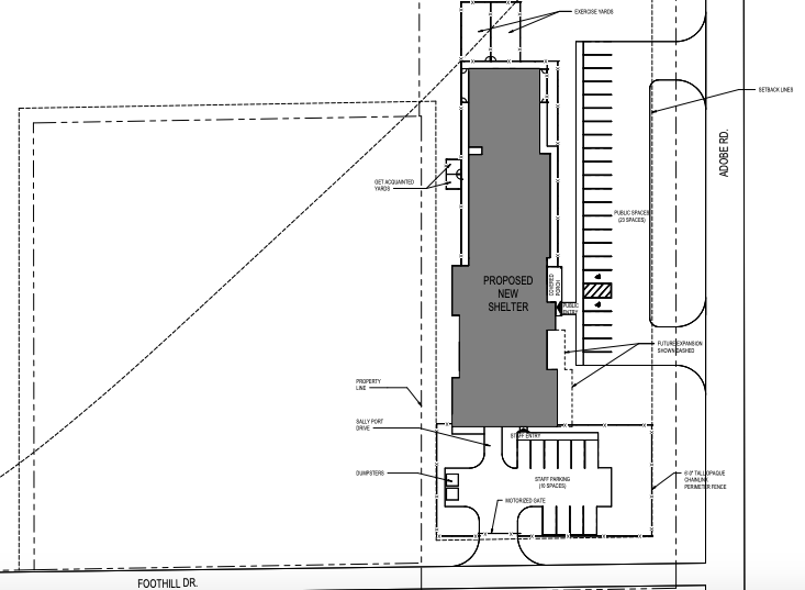
15. Subcommittee for the Animal Shelter Design Project

City staff is requesting the formation of a subcommittee made up of two council members to assist with design suggestion, cost supervision, and general input on construction of the new animal shelter location, between Adobe Road and Foothill Drive, near Tortoise Rock Casino. The proposed Palms-N-Paws ground-up rebuild was presented at the April 4 strategic planning session.

16. Affordable Housing Update (November 2025)
City Manager James will kick off the affordable housing item, which will include updates from the Council’s two housing and homeless subcommittee members— April Ramirez and Octavious Scott. According to the staff report, the City has confirmed that the original developer for an affordable housing project immediately west of City Hall had dropped out. The manager is now seeking council direction on posting another request for proposal (RFP) for the site.
An affordable housing update on August 26 was fueled by passionate exchanges between councilmembers. Since then, Councilmember Ramirez has met with Neighborhood Partnership Housing Services, Inc. (NPHS) to discuss affordable housing and aging in place programs, while Councilmember Scott hosted a community roundtable discussion on homelessness.
17. Holiday Closure
City Manager is requesting approval to close City buildings from Wednesday, December 24, 2025, to Friday, January 2, 2026. City staff will return Monday, January 5th.
FUTURE COUNCIL-INITIATED ITEMS
Shade structures around Freedom Plaza and a possible art fixture with “Freedom Plaza” announcing the location.
Discussion on partnering with the Boys and Girls Club.
Discussion of a policy regulating the use of City Attorney resources.
Maintained Roads vs. Non-Maintained Roads.
Discussion on creating a “Recognized Neighborhood Program”.
The meeting will take place at City Hall at 6 pm, 6136 Adobe Road. And another reminder: this meeting will be held on Wednesday, not on Tuesday.
We welcome your comments! Please note that we do not allow anonymous comments. Please be sure your first and last name is on your profile prior to commenting. Anonymous comments will be deleted.
Feel free to share this article!
We are $95 away from $7000 in paid subscriptions! Who’s going to take us over $7,000? Upgrade to a paid subscription for just $5 per month or $50 per year.
Would you care to donate more than $100? Our Paypal account is up and running!
Source: City Staff Report
Source: City Staff Report


The current 29🌴Visitor Center is an attractive, useful and helpful place but its placement is not ideal. There’s not much foot traffic right there & nothing about the location brings it to people’s attention. (I go there a lot for my out-of-town company.) If you were a 29🌴visitor how would you even know about the Visitor Center?
And, as noted, it isn’t open most of the time. Which is beyond annoying. Especially if, as a visitor, you happened to hear about it, traveled to it, then it was closed! Bad news baby.
At a better central location it could also be staffed with volunteers and/or function less formally altogether and just have volunteers present (wherever) to hand out brochures, info packets, offer suggestions, make recommendations, etc.