On the Agenda: Twentynine Palms Planning Commission, October 21, 2025
The Commission considers a CUP for a 3-D printed resort on Amboy Road

At Tuesday’s Planning Commission meeting, community members will hear how developers hope to build a 30-unit 3D-printed resort along Amboy Road—half a mile east of Adobe, on land that straddles both Commercial Tourist and Single-Family Residential zones. While the Ofland Hotel controversy still lingers, this project arrives with cleaner zoning credentials and a futuristic pitch: robot-made cabins in the sand. Tuesday’s hearing marks the project’s first public review, and the Commission’s decision will be final unless appealed.
The agenda packet including the Negative Declaration for the proposed Amboy Resort is linked here.
PUBLIC COMMENTS
After Planning Commission announcements, residents can comment on items not on the agenda. Public comments on agenda items will be requested when the item is discussed. Fill out a green comment sheet for public or agenda item comments and hand it to the staff, usually sitting at the desk at the front of the room on the right side. Residents have three minutes to make your comments.
You may also email comments to Planning Commission members and Community Development Director Keith Gardner and request that comments be read at the meeting.
PUBLIC HEARING
2. Conditional Use Permit (CUP) Amboy Resort

In yet another fast-tracked resort proposal (see our opinion piece on the Planning Commission’s role in approving the Ofland Hotel), the Commission will take up a new Conditional Use Permit application from Western Home Builders on behalf of Azure Printed Homes. The developers propose construction of a 30-unit 3D-printed resort along Amboy Road. Unlike Ofland, which is sited on land that had been zoned residential, the Amboy Resort project is appropriately proposed for land that is partly zoned Commercial Tourist (CT) and partly zoned Single-Family Residential (SFR) and is located near the Roadrunner Dunes golf course and the 29 Palms Resort RV Park.
This marks the first time the project has appeared before the Commission. A public hearing notice was published in the Desert Trail on September 24, 2025, and mailed to all property owners within 300 feet of the site, located roughly half a mile east of Adobe Road and west of Desert Knoll Avenue. The Commission serves as the city’s review authority for such projects, and its decision will be final unless appealed to the City Council.
What is the Amboy Resort?

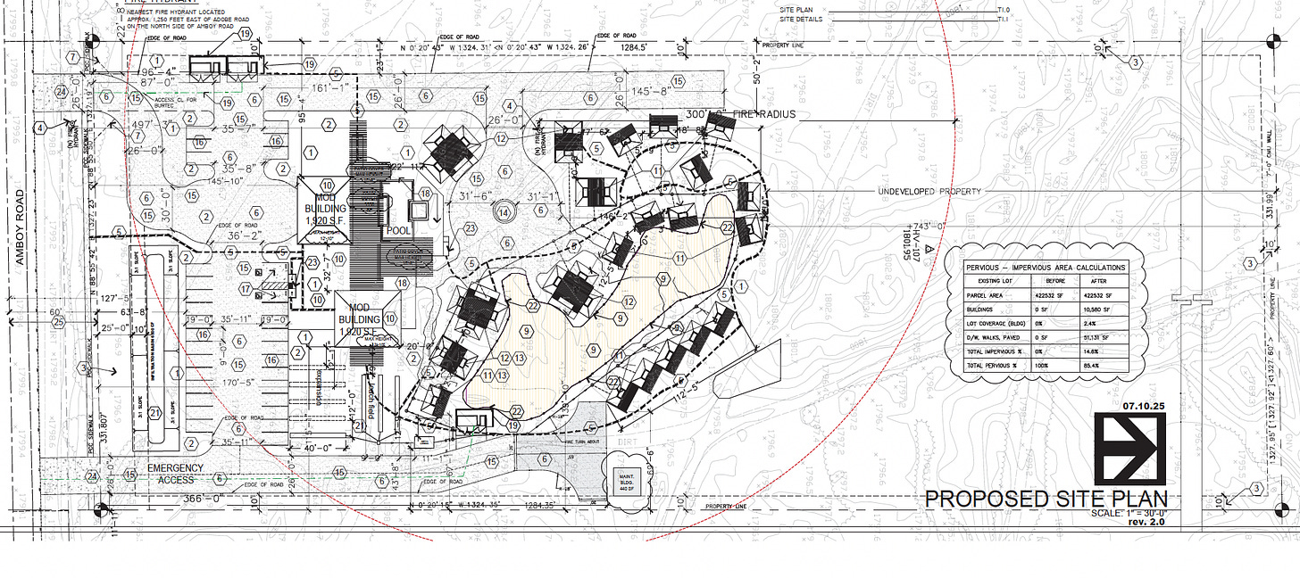
The 10-acre parcel carries split zoning: the southern half is designated Commercial Tourist (CT) while the northern portion is zoned for single-family residential use at two lots per acre and is mostly covered by sand dunes. Development would occur only on the southern five acres; the rest would stay undisturbed desert. The land is presently vacant and appears to be criss-crossed by off-road vehicle tracks. It is bordered by other vacant parcels, with the 29 Palms RV Resort about 400 feet to the east.
Plans call for 30 small guest cabins,1 each about 200 square feet, paired with two community buildings of roughly 1,920 square feet apiece. In Twentynine Palms’ development code, CT zoning appears not to have restrictions on the number of units that can occupy the property except for the building and fire code and regulations on setbacks. While 30 cabins on five acres seems uncomfortably crowded for the desert’s wide-open spaces, this arrangement might serve well for large events like weddings, reunions, and birthday parties. The septic system is not covered in the report and is not evident in the site plan.2
A shaded patio of 3,500 square feet would connect the shared amenities, which include a pool and spa. No restaurant or grab-and-go store appears to be included in the plans. The applicant describes the project as a “single-phase build relying on additive-manufactured structures”—3D-printed modules assembled on-site. Modular construction like this would minimize the need to hire local workers for construction jobs; it appears the modules are manufactured robotically. (For more on this construction method, here’s an interview with the principals of Azure Homes.) Western Home Builders has very little web presence but seems to have a long history of building affordable modular homes. Azure Homes’ website is long on flash and low on substance, with the Google description coming up with placeholder lorem ipsum text beloved of graphic and web designers. Oops.
The site is currently owned by Proactive Properties, LLC, which belongs to George Mulopulos of Las Vegas, and who is a regular speaker at Planning Commission meetings.
What is in the Negative Declaration and Initial Study?
Included in the staff report are several studies submitted by the applicant to accompany the CUP. Circle Mountain Biological Consultants surveyed the property in August 2024 and found no evidence of desert tortoises or burrowing owls. A separate cultural-resources report by CRM Tech identified one prehistoric site that was previously known and six additional archaeological features. The city’s draft conditions require protection of all seven locations, either through avoidance, capping, or data recovery under qualified supervision.
Based on those studies, staff prepared a Negative Declaration under the California Environmental Quality Act, concluding that potential impacts to biological, cultural, and tribal cultural resources would be less than significant once mitigation measures are applied. The Desert Trumpet has reviewed the Negative Declaration included in the staff report and although we would like to have more time with it, it seems that impact on these 10 acres wouldn’t be significant.
What happens on Tuesday?
In its staff report, the Planning Division concludes that the proposed use is consistent with the zoning designation and the city’s long-term vision for Amboy Road as a tourism corridor. The design meets all setback, height, and lot-coverage limits, and the parcel is deemed adequate in size and shape to accommodate the resort while maintaining a buffer from neighboring properties. Conditions requiring underground utilities, landscaping, street improvements, and stormwater retention are expected to ensure that the development will not be detrimental to public health or welfare. How septic will be handled is unclear.
Before granting a Conditional Use Permit, the Commission must make three core findings: that the project conforms to the city’s General Plan and Development Code; that it will not harm public health, safety, or surrounding property; and that the site is adequate to host the use. Staff believe these findings can be made based on the submitted plans and environmental documentation.
Some Planning Commission members pay attention to details and ask questions. Here are some: Does the small-footprint lodging made from recycled materials of unknown durability in the desert environment align with Twentynine Palms’ goals for sustainable growth? Does the resort’s location near Utah Trail, which leads into Joshua Tree National Park, make it a prime spot for development? Will transportation infrastructure follow the resort and possible future development along Amboy Road? How many cabins are actually being included in the resort? And where oh where will the septic system go?
The Commission may approve the project as recommended, modify it through additional conditions, or deny the permit altogether. Commissioners could also continue the hearing if they request more information—such as detailed renderings, art-feature proposals, or clarification of infrastructure responsibilities along Amboy Road.
If approved, the CUP would authorize Azure Printed Homes to move forward with construction drawings and building-permit applications. Because the decision is final unless appealed, neighboring property owners will have ten days after the Commission’s action to file an appeal with the City Council.
Although this project represents the city’s first resort built with 3D-printing technology, the underlying question for the Commission remains familiar: whether tourism-oriented investment can coexist with surrounding neighborhoods and environmental values.
DISCUSSION AND POTENTIAL ACTION ITEM
Zoning Determination for Smog Check facilities in the Downtown General Land Use District

Will the property at 73709 29 Palms Highway, located at the southeast corner of Adobe Road and Highway 62, become a smog check station? Should it be classified as “automotive repair - minor” and thus not allowed per the Downtown General land use district?
Property owner Wendy Sundberg has proposed this use, noting that it will provide a valuable service to the community, will have limited impact on traffic because use is mostly by appointment-only, and it will contribute to the tax base.
Disclosure: Kat Talley-Jones is on the organizing committees of Indian Cove Neighbors and Say No to Ofland.
Leave your thoughts in the comments below. Please note that we do not allow anonymous comments. Please be sure your first and last name is on your profile prior to commenting. Anonymous comments will be deleted.
Feel free to share this article!
We are $65 away from $7000 in paid subscriptions! Who’s going to take us over $7,000? Upgrade to a paid subscription for just $5 per month or $50 per year.
Would you care to donate more than $100? Our Paypal account is up and running!
Fifteen guest structures are visible in the site plan.
The septic system is keyed as #20 on the site plan, but searching on “20” and much squinting at the plan did not reveal its location.


Putting a smog certification use on a prominent intersection would be a big step backwards for the repositioning of 29 for tourism. Similar to putting a storage facility in the heart of the downtown area, which reduced foot traffic in a top prime location. I won't even mention the stupidity of allowing a new liquor store there, as well. Oops, I just did.
There's money to be made, folks. This tourist housing will be a lure the city will not fight. It's about growth and all it brings.
Today I had a revelation on Adobe; I had to cup my ears to talk with a man who rode to town on an unusual bicycle about said bicycle. We were partially successful though mostly between breaks in traffic flow. I have never experienced this out here. That this situation existed was due to what appears to be an overall increase in speed on Adobe and likely a slight uptick in base originated traffic soon to be greatly increased when the clock said quitting time.
I felt old. Now old and quiet 29 will exist mostly in photos. The new one envisioned by city hall and :investors will be simply another visual niche in the carpet of architectural mediocrity spreading across California in pursuit of profits.